2025-03-19
1. Fitur utama switchgear terisolasi gas SF6:
	
Gas Switchgear Gas Mengadopsi SF6 sebagai media isolasi utama pada unit utama 10kV hingga 35kV. Dalam pembangunan urbanisasi, unit utama cincin penuh gas penuh SF6 memiliki manfaat signifikan pada desain kompak dan modular. Itu secara luas mengadopsi jaringan listrik perkotaan, transit kereta api, industri energi baru, dan perusahaan industri.
	
1.1 Desain modular switchgear terisolasi gas SF6
	
ItuUnit utama SF6 Ring Terutama memiliki C (panel sakelar kabel), V (panel pemutus sirkuit vakum), D (panel koneksi kabel langsung), DE (koneksi kabel langsung dengan panel pembumian), F (panel pemutusan sakelar), dan M (panel pengukuran).
Dalam kasus yang sebenarnya, unit C dan V menawarkan kontrol dan perlindungan untuk memasukkan dan mengeluarkan saluran listrik kabel. Selain fungsi operasi beban, unit V memiliki lebih banyak fungsi saat memotong arus sirkuit pendek dan arus beban. Unit M melengkapi pengukuran CT, dan PT, dan meteran energi. Biasanya, memiliki lebar 800mm yang sama dengan aKyn28-12. Unit D dan DE digunakan untuk meningkatkan ketinggian kabel dari tanah ke atas unit utama cincin SF6. Selain itu, unit F juga digunakan dalam input dan perlindungan outputting, tetapi pengguna terminal lebih suka mengadopsi unit V daripada unit F, karena gigi pengendali lebih kompleks.
	
1.2 Desain kompak switchgear terisolasi gas SF6
	
Biasanya, dimensi unit C atau V adalah W*H*D = 371*1800*750 (mm), namun, panel input atau output dari KYN28-12 adalah W*H*D = 800*2300*1500 (mm). Tidak ada keraguan bahwa unit utama SF6 Ring memiliki lebih kompetitif pada logistik dan biaya lahan. Selain itu, switchgear terisolasi gas SF6 memiliki biaya bahan yang lebih rendah daripada KYN28-12 sebagai perancangan yang ringkas.
	
	
2. Struktural S Cheme dari SF6 Gas Switchgear
	
Dalam switchgear terisolasi gas, terutama memiliki tangki gas SF6, sakelar dan pemutus utama, sistem busbar, pengendali gigi dan sistem kontrol dan perlindungan sekunder.
Tangki bensin SF6 mengadopsi 201 atau 304 stainless steel, di mana laju kebocoran tahunan lebih rendah dari 0,1%, yang dirancang sepenuhnya disegel dan terisolasi. Ini memastikan layanan bebas perawatan selama lebih dari 30 tahun.
Itu mirip denganswitchgear isolasi udara Bahwa sakelar dan pemutus utama dalam panel input dan output adalah sakelar pembumian, putuskan sakelar, pemutus sakelar beban dan pemutus sirkuit vakum untuk kontrol dan perlindungan sistem daya.
Dalam satu tangki SF6 yang umum, dapat mengintegrasikan 7 unit modular pada sebagian besar sistem jaringan daya 10 kV. Kalau tidak, kabel koneksi dan steker kabel diperlukan untuk ekstensi. Namun, dalam satu tangki umum, unit modular dihubungkan oleh busbar tembaga.
Sistem kontrol dan perlindungan sekunder memiliki fungsi untuk memantau tegangan nilai dan arus untuk melindungi unit utama cincin SF6 dari kegagalan sistem. Sementara itu, juga mendukung otomatisasi, kendali jarak jauh, akuisisi data, dan akses ke sistem SCADA. Selain itu, unit utama cincin SF6 juga menyediakan catu daya tambahan untuk memastikan pengoperasian kontrol dan transmisi sinyal yang normal.
	
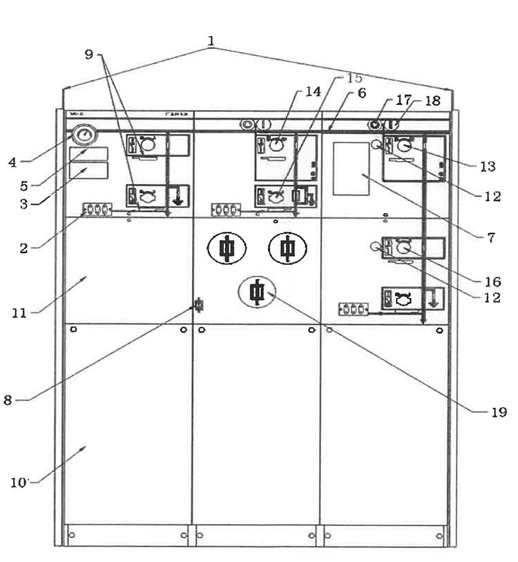
2.1 SF6 Gas Insulat S Witchgear S Tructure D Iagram:
	
	  
 
	
| 1. Lifting Ring | 2. Indikator langsung | 3. Indikator kesalahan yang dapat dibuang | 
| 4. Meter tekanan gas | 5. Pelat dengan nomor seri | 6. Gambar satu baris | 
| 7. Relay yang Dipenuhi Sendiri | 8. Indikator sekering yang ditiup | 9.Padlock | 
| 10. Kamar Kabel | 11. Ruang Instalasi RTU211 | 12. Loker | 
| 13. Lubang Operasi Pemutus Sirkuit | 14. Lubang Operasi Sakelar Muat | 15. lubang operasi sakelar pembumian | 
| 16. Mengisolasi lubang operasi sakelar | 17. Tombol Perjalanan | 18. Tombol Tertutup | 
| 19. Kompartemen sekering | 
 | 
 | 
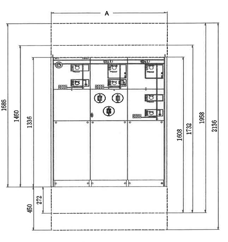
2.2 Dimensi luar unit utama cincin SF6 :
	
	  
 
| Satuan | A | 
| 1 sel | 371 | 
| 2 sel | 696 | 
| 3 sel | 1021 | 
| 4 sel | 1346 | 
| 5 sel | 1671 | 
| 6 sel | 1996 | 
2.3 Solusi Standar dan E XTension M Odules :
	
	 
 
	
| C: sakelar kabel | F: sakelar kabel dengan sekering | 
| DE: Koneksi kabel sutradara dengan pembumian | V: Pemutus Sirkuit Vakum | 
| D: Sambungan Kabel Direktur | M: Modul pengukuran (isolasi udara) | 
3. Parameter SF6 Gas Switchgear
	
| 1. Tekanan gas SF6: | Tekanan relatif pada 20 ° C adalah 0,03mpa | 
| 2. Tingkat kebocoran gas tahunan: | ≤0,01% | 
| 3. Tingkat Perlindungan: | IP67 | 
| 4. Kondisi Lingkungan Operasi Normal: | -35 ℃ hingga+40 ℃ | 
| 5. Kelembaban relatif rata -rata maksimum (pada 25 ° C): | Nilai rata -rata harian ≤ 95%; Nilai rata -rata bulanan ≤ 90% | 
| 6. Altitude: | ≤ 1000m | 
| 7. Intensitas gempa: | Levelⅷ |